Prominent Commercial Space in Balzan
Description
Prominent Commercial Space in Balzan
A compact yet highly visible commercial property offering flexibility, accessibility, and a professional setting in one of Malta’s central towns.
This Prominent Commercial Space in Balzan presents an excellent opportunity for businesses seeking a well-located and practical workspace. Set over duplex floor levels, the property measures a total of approximately 90 sqm. Its strategic positioning ensures strong frontage and visibility, making it ideal for companies that value accessibility and brand presence. Moreover, easy parking options in the immediate vicinity add daily convenience for staff and visiting clients.
The layout supports a professional working environment while remaining adaptable to different business models. As a result, this space suits small to medium-sized teams looking for a central and efficient office solution. Common area costs over and above advertised rental rate apply.
Property Highlights at a Glance
- Total internal area: approx. 90 sqm over two levels
- Duplex layout: ground floor and mezzanine level
- Ideal capacity: 6–10 workstations
- Strong frontage in a well-connected Balzan location
- Semi-furnished and ready for occupation
- Easy parking available nearby
- Private smokers’ yard
Flexible Duplex Layout
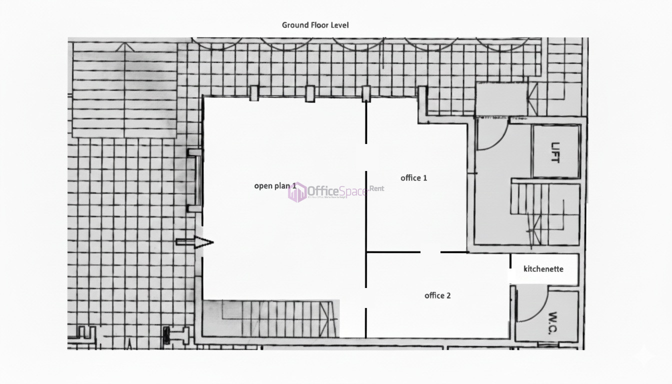
The commercial space is arranged over two functional levels, allowing businesses to clearly separate working zones. On the ground floor, one finds an open-plan office area that works well as a reception, collaborative workspace, or client-facing zone. This level also includes a closed office, suitable for management use or private meetings.
The mezzanine level offers a second open-plan space, ideal for additional desks or team collaboration. A further enclosed office on this level provides privacy for focused work or confidential discussions. This vertical separation improves workflow and helps teams operate more efficiently.
A dedicated meeting room supports internal discussions or client presentations, while the kitchenette and bathroom ensure everyday practicality. In addition, access to a smokers’ yard adds a rare convenience often missing in compact commercial properties.
Ideal for Small Teams and Growing Businesses
This Prominent Commercial Space in Balzan comfortably accommodates teams of up to 6–10 workspaces. Its manageable size keeps operational costs controlled, while the duplex design maximises usability. Consequently, the property suits professional services, start-ups, consultancies, creative studios, or satellite offices.
The semi-furnished setup allows businesses to move in quickly while still customising the space to reflect their brand identity. This balance between readiness and flexibility makes the property particularly attractive for companies seeking efficiency. Furthermore, consider commercial offices in Attard in this area.
Location Benefits of Balzan
Balzan remains one of Malta’s most desirable central localities. Known for its village charm and strong community feel, the town offers a calm yet professional business environment. At the same time, Balzan enjoys excellent connectivity to neighbouring towns such as Attard, Birkirkara, and Mosta.
Additionally, this office purchase in Hal Balzan could interest you.
Businesses benefit from nearby amenities, including cafés, shops, and daily services, all within walking distance. Public transport routes also serve the area well, supporting staff commuting from different parts of the island. Importantly, the availability of parking nearby enhances accessibility for both employees and clients.
Visibility and Professional Presence
Strong frontage remains a key advantage of this commercial space. The property allows businesses to establish a visible and credible presence within the locality. Whether used as a client-facing office or an operational base, the space supports brand recognition and professionalism.
The duplex configuration also adds character, setting the office apart from standard single-level units. This unique layout can enhance company culture while improving day-to-day functionality.
Summary
This Prominent Commercial Space in Balzan delivers a smart and efficient solution for businesses seeking a central, visible, and flexible office. With approximately 90 sqm spread over two levels, semi-furnished interiors, easy parking, and a practical layout, the property meets the needs of modern small teams.
360° Virtual Tour
Details
Updated on April 13, 2026 at 8:30 am- Price: €2,200
- Rent/m²/year: €293
- Property Size: 90 m²
- Property ID: 67583
- Bathroom: 1
- Property Status: For Rent
