Hal Balzan Private Office
Description
Hal Balzan Private Office
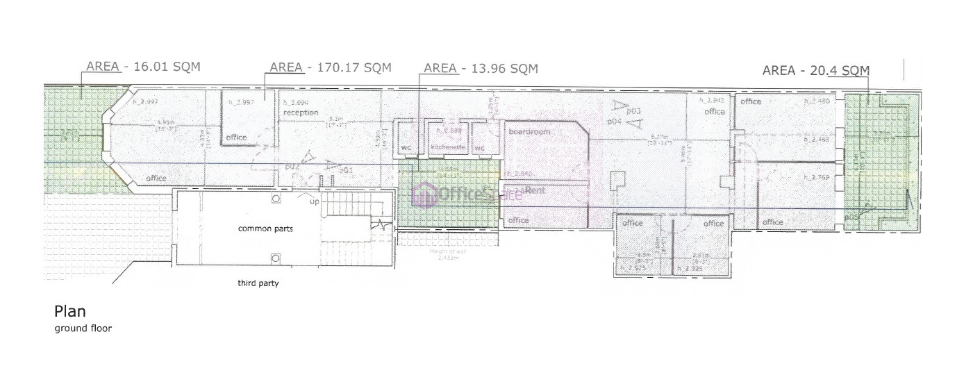
Hal Balzan Private Office located in one of the most sought-after residential areas of this central Maltese village. This spacious office premises measures approximately 170sqm internally and includes an additional 50sqm of exterior space, providing a balanced working environment with both indoor and outdoor areas.
The property sits in a quiet villa neighbourhood with easy street-level access and convenient on-street parking nearby. The office enjoys a practical layout complemented by multiple outdoor spaces including a front patio, internal yard, and backyard, all of which bring natural light into the workspace.
This setup creates a bright and comfortable office environment suitable for companies seeking a professional workspace in a calm yet central location. You can also view more available offices and updates by visiting our OfficeSpace Malta Facebook page.
Office Layout & Features
- Approximately 170sqm internal office space
- 50sqm external space including patio and backyard
- Welcoming reception and open plan entrance area
- Large front office with executive partitioned room
- Boardroom
- Server room
- Two small executive offices
- Two larger executive offices with backyard access
- Kitchenette
- Two bathroom facilities
- Internal yard providing natural lighting
- Street level access
The reception area leads into an open plan workspace which connects to the internal yard, creating a naturally bright central working area. Moving further into the property, the layout includes multiple executive offices, a boardroom for meetings, and a server room suitable for businesses requiring technical infrastructure.
The combination of private offices and open working areas allows companies to comfortably organise teams while maintaining dedicated spaces for management and meetings.
The Location – Balzan
Balzan forms part of the central Maltese residential belt and is known for its quiet streets, traditional townhouses, and professional working environment. The area sits close to other major commercial hubs such as Birkirkara, Mriehel, and San Gwann, making it a practical location for businesses operating across Malta.
The village also offers convenient access to restaurants, cafés, banks, and daily amenities, all within a short distance. Its central location allows employees to commute easily from most parts of the island.
For businesses seeking a quieter office environment while remaining close to Malta’s commercial districts, Balzan offers an attractive balance between accessibility and privacy.
Enquire About This Office in Balzan
If you are looking to rent an office in Hal Balzan, this property provides a spacious and well-located solution for companies seeking a central yet peaceful workspace.
The team at OfficeSpace.rent can assist you with viewings, negotiations, and finding the right office space for your business.
Email: [email protected]
Phone: +356 9992 2220
Website: https://officespace.rent
Contact us today to schedule a viewing or explore more office spaces available across Malta.
Details
Updated on March 9, 2026 at 12:01 pm- Price: €890,000
- Property Size: 170 m²
- Property ID: 66780
- Property Status: For Sale
