Attard Penthouse Office to Let
Description
Attard Penthouse Office to Let
200 sqm | Suitable for approximately 20–28 desks
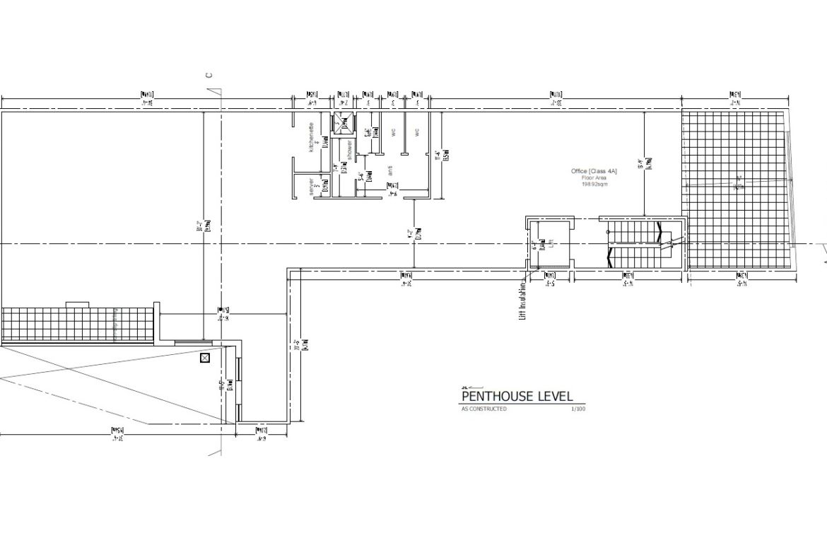
This Attard Penthouse Office to Let measures 200 sqm internally and includes a generous 30 sqm terrace area. The layout provides two large open plan areas suited to flexible team configurations. Three bathrooms, a kitchen area, and a dedicated server room complete the space. Moreover, the office is delivered finished with tiling, painting, electricity points, lighting, and air conditioning units installed throughout. It is ready for immediate occupation without any additional fit-out work.
Attard as a Professional Base
Despite its peaceful setting, Attard has strong road connections to Mriehel CBD and Valletta. OfficeSpace.rent’s own office is based in this town. That reflects the genuine appeal of Attard as a professional location. In particular, businesses choosing this Attard Penthouse Office to Let gain the Three Villages prestige alongside practical connectivity. Malta Enterprise incentives may support companies relocating to the area. Furthermore, a bus stop nearby provides public transport links for staff commuting from across the island. Local restaurants and cafes are within comfortable walking distance.
Who This Space Suits
Teams of 20 to 28 people seeking a finished, move-in-ready office will find this Attard Penthouse Office to Let highly appealing. The terrace is a standout feature for this market. It offers outdoor space for breaks, informal meetings, or team events. Consequently, it adds a dimension that few standard offices can match. The space suits growing companies, particularly those registered through Business First Malta. Indeed, the combination of finished interiors, lift access, and a rooftop terrace makes this property distinctive within the Attard market.
For available office spaces in Attard, visit the Attard office listings page.
Enquire About This Space
The team at OfficeSpace.rent can assist you with viewings, negotiations, and identifying the most suitable commercial property for your business.
Email: [email protected]
Phone: +356 9992 2220
Website: https://officespace.rent
Details
Updated on April 6, 2026 at 6:56 am- Price: €3,000
- Rent/m²/year: €180
- Property Size: 200 m²
- Property ID: 39397
- Bathrooms: 3
- Property Status: For Rent
