Updated: Feb 23, 2026
Villa Office Tarxien Malta
Description
Villa Office Tarxien Malta
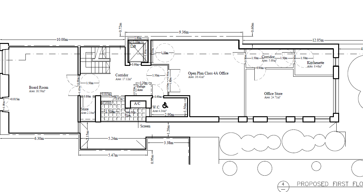
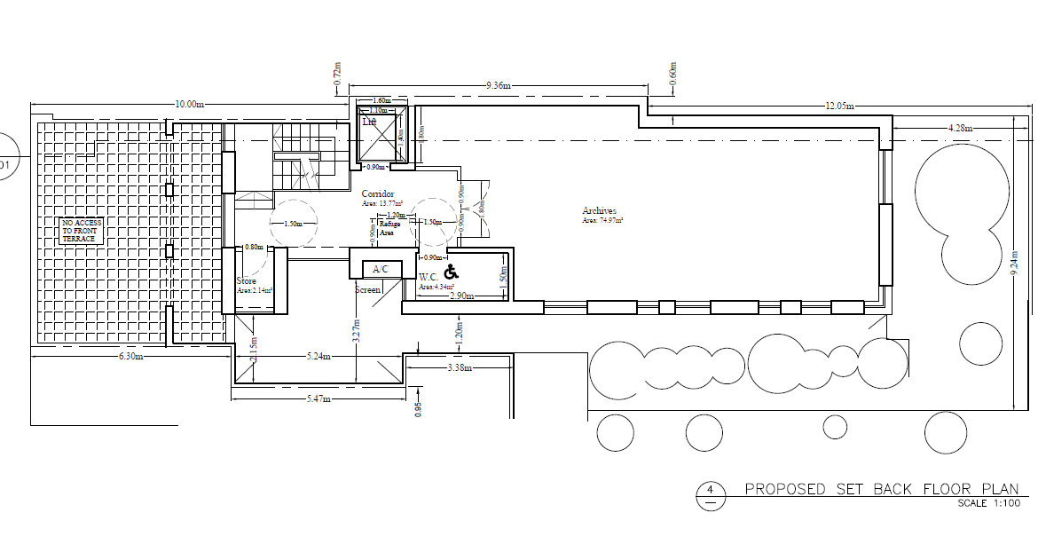
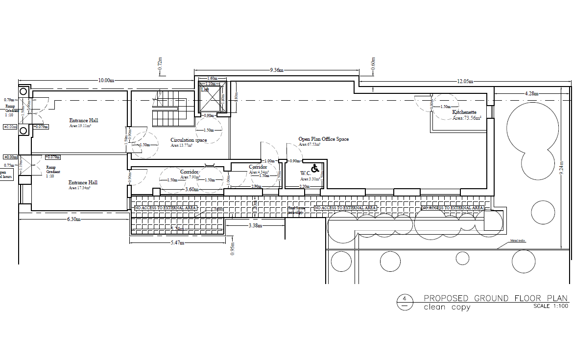
Villa Office Tarxien Malta. A commercially licensed one-off Villa in one of the main roads and in the heart of Tarxien which is also walking distance from Paola centre. The Villa split into three floors and measuring a total area of circa 450 sqm. The Villa comprises of a reception area, open plan, bathroom, and a small garden on the first floor and on the second floor, open plan and bathrooms and kitchenette on the third floor. Ideal for 40 to 50 employees.
Energy Performance Certificate: N/A
Details
Updated on February 23, 2026 at 11:28 am- Price: €3,950
- Rent/m²/year: €105
- Property Size: 450 m²
- Property ID: 31022
- Bathrooms: 2
- Property Status: For Rent
