Ta Xbiex Seafront Commercial Property
Description
Ta Xbiex Seafront Commercial Property
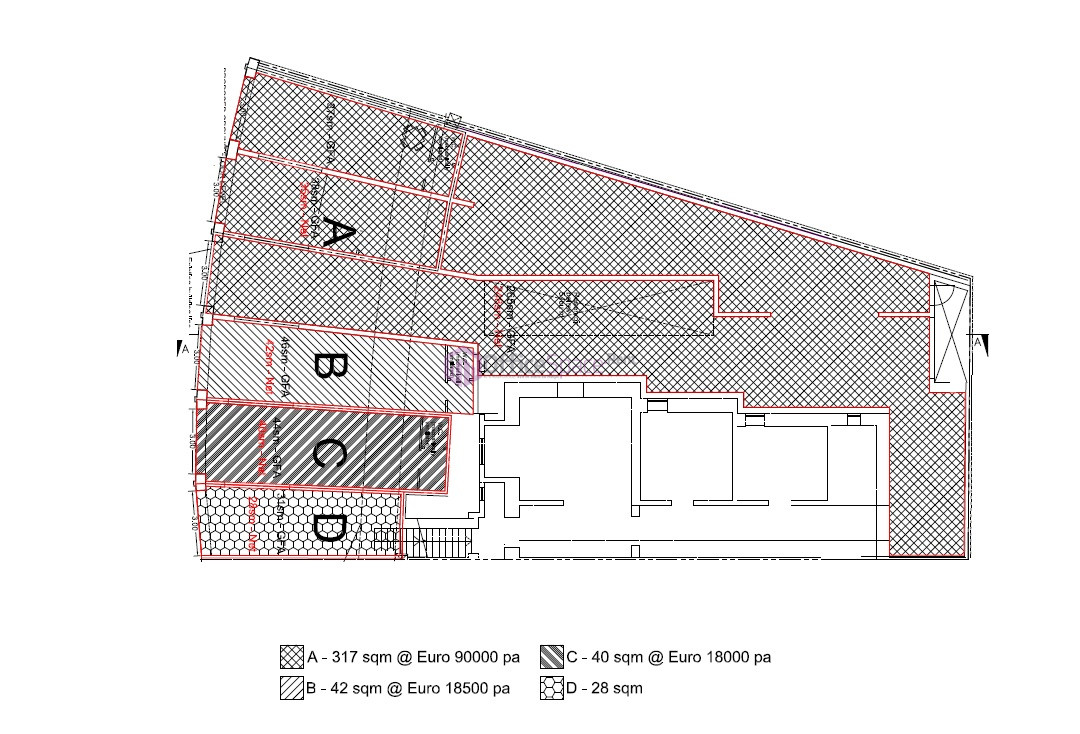
Ta Xbiex Seafront Commercial Property located in the best part of promenade and with good passing trade. Ideal for offices, retail as well as for catering establishments. Comes with frontage which is ideal for marketing purposes. Split into 4 units with the largest space being around 317sqm. The other spaces available measure 40sqm, 42sqm and 28sqm. Finishes to be discussed with the owner.
- Office A – 317sqm @ €90,000/annum
- Office B – 42sqm @ €18,500/annum
- Office C – 40sqm @ €18,000/annum
- Office D – 28sqm – rented
Energy Performance Certificate: N/A
Details
Updated on May 27, 2020 at 4:42 pm- Price: €7,500
- Rent/m²/year: €284
- Property Size: 317 m²
- Property ID: 22073
- Bathrooms: 2
- Property Status: For Rent
Similar Listings
Properties are constantly updated for availability and with fresh details. Do get in touch to confirm the exact availability on this space.
Moreover, the information contained in this website is for general information purposes only. While we try our best to keep our listings up to date and with all the possible information available, we make no representations or warranties of any kind about the accuracy, reliability or availability with respect to the website or the information, products, or services contained on the website for any purpose.