San Gwann Office Space For Sale
- €983,000
Description
San Gwann Office Space For Sale
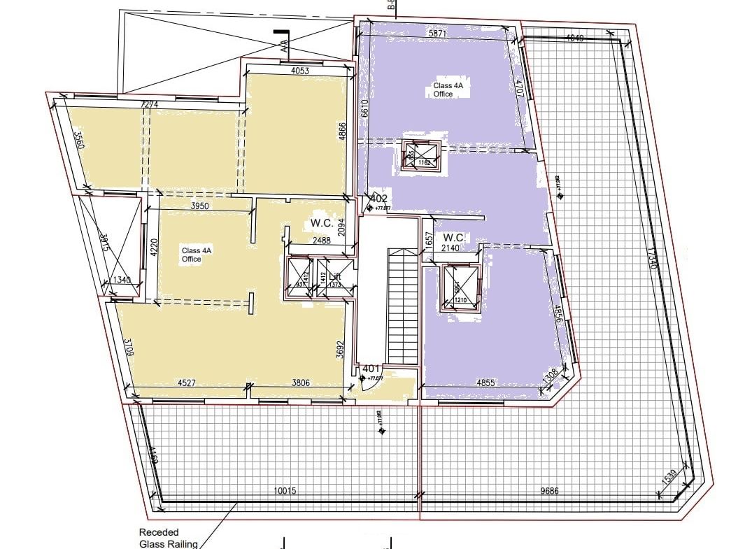
359 sqm total across multiple units | Suitable for approximately 30–45 desks. This San Gwann office space for sale is situated in Kappara, within the limits of San Gwann. The development is positioned just off the main north-south bypass. Furthermore, Sliema is only a five-minute drive away. Units are available on levels three and four in shell form state. As a result, purchasers can design the interior layout to suit their precise needs. The building includes lift access. In addition, daily amenities and major institutions are close by, including Mater Dei Hospital and the University of Malta.
A Practical Investment Choice
The Kappara area of San Gwann offers centrality without the premium rents of coastal towns. Road connections from the main bypass reach every part of the island efficiently. Moreover, this San Gwann office space for sale benefits from strong demand in a well-connected location. Restaurants, shops, and professional services are available nearby. The area has steadily attracted commercial development due to its accessibility. For companies setting up in Malta, Business First Malta provides a one-stop service for permits and registrations.
Ideal Buyers
Shell-form delivery gives buyers maximum flexibility over their workspace layout. Specifically, owner-occupiers can create spaces tailored to their team structure and brand identity. Unit sizes range from 110 sqm to 128 sqm internally. Meanwhile, this San Gwann office space for sale also appeals to investors targeting Malta’s commercial property market. The high-traffic Kappara location supports consistent occupancy rates. Consequently, the investment case is strengthened by the area’s growing commercial profile. Indeed, businesses in professional services, technology, and financial sectors will find the location well suited to their needs.
For available office spaces in San Gwann, visit the San Gwann office listings page.
Enquire About This Space
The team at OfficeSpace.rent can assist you with viewings, negotiations, and identifying the most suitable commercial property for your business.
Email: [email protected]
Phone: +356 9992 2220
Website: https://officespace.rent
Features
Details
Updated on April 15, 2026 at 3:39 pm- Price: €983,000
- Property Size: 359 m²
- Property ID: 37110
- Bathrooms: 2
