Prominent Commercial Block in Attard
Description
Prominent Commercial Block in Attard – A Landmark Business Opportunity
This Prominent Commercial Block in Attard offers a rare chance to establish your business in Malta’s center. Moreover, the property sits in a prime location that connects the northern and central parts of the island. In addition, it enjoys excellent visibility with frontage onto two busy roads, ensuring daily exposure. As a result, strong passing trade makes it perfect for both retail and office use. The block also combines modern infrastructure with a strategic location to attract ambitious companies. Therefore, it suits those seeking a flagship headquarters or a high-profile retail destination. Ultimately, few properties in Malta offer such scale, flexibility, and prominence.
Strategic Location in Attard
This Prominent Commercial Block in Attard places businesses in direct reach of Malta’s wider market. Furthermore, Attard connects seamlessly to major transport routes, enabling access from both the north and central regions. In addition, its central location makes it highly desirable for companies serving multiple districts. Two road frontages also ensure visibility to thousands of people daily. As a result, businesses gain brand recognition as well as consistent walk-in trade. Therefore, companies aiming for long-term presence in Malta will find this location unmatched.
Building Layout and Design
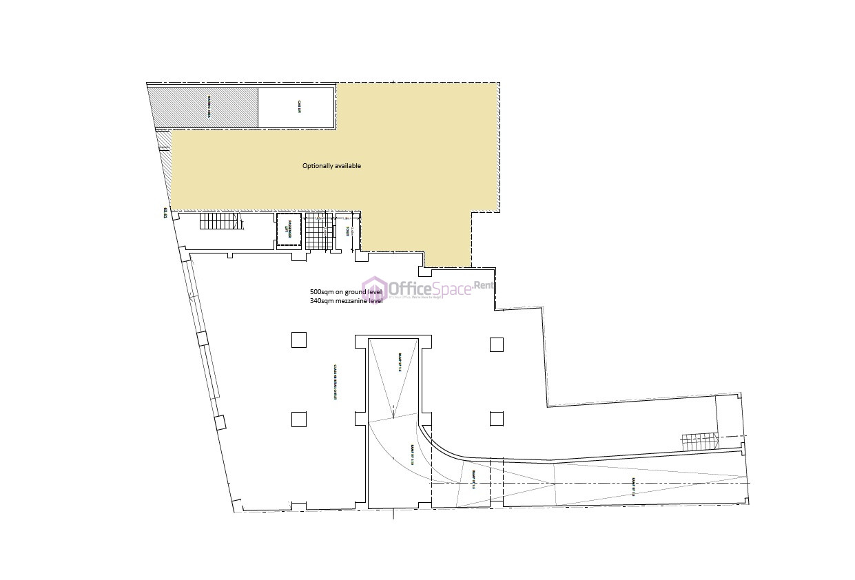
The block spans multiple levels, designed with versatility and growth in mind. At basement levels -1 and -2, parking accommodates around 30 vehicles. Therefore, staff and clients enjoy easy access and convenience. On the ground floor, a 660sqm retail unit combines with a 350sqm mezzanine, offering dual entrances. Consequently, this layout increases customer flow and strengthens visibility. Furthermore, three expansive upper floors provide large open-plan areas ideal for retail or office operations. In addition, the penthouse level includes a terrace, creating space for outdoor use and events.
Layout Overview:
-
Level -1 & -2: Parking for around 30 cars
-
Level 0: Retail unit 660sqm + mezzanine 350sqm
-
Level 1: 450sqm
-
Level 2: 450sqm
-
Level 3: 340sqm + 110sqm terrace
Ideal for Flagship Premises or Headquarters
This Prominent Commercial Block in Attard creates the perfect setting for a flagship headquarters. Moreover, companies can showcase ambition and professionalism in such a strategic property. In addition, large retailers can transform the space into a destination outlet. Its impressive size, flexible layout, and visibility all support business growth. Furthermore, high-quality finishes ensure companies move in quickly without delays. Therefore, this block provides ambitious brands with a powerful platform to thrive.
Potential as a Retail Complex
Beyond office use, this property also works perfectly as a retail complex. For instance, the ground floor and mezzanine allow versatile layouts for stores. Moreover, the upper floors provide room for large showrooms, service centers, or multiple retail levels. In addition, terraces create opportunities for outdoor events, promotions, or customer experiences. On-site parking and dual road access also improve convenience for visitors. As a result, businesses in fashion, technology, or lifestyle will thrive here. Ultimately, this Prominent Commercial Block in Attard merges location, flexibility, and visibility for retail success.
Why Choose Attard for Your Business
Attard stands out as one of Malta’s most desirable central locations. Furthermore, it combines accessibility, residential charm, and commercial growth. Surrounded by strong communities, businesses benefit from a steady customer base. In addition, transport links make it practical for both retail and corporate headquarters. The town also creates a balanced environment for companies and employees alike. Moreover, with rising demand for commercial space, Attard offers a unique opportunity. Therefore, securing this Prominent Commercial Block in Attard places your company at the center of growth.
Furthermore, explore this Attard shop office with street frontage to let.
Secure Your Prominent Commercial Block in Attard
Few properties in Malta combine scale, visibility, and centrality as effectively as this one. Furthermore, its flexible layouts and modern finishes create unmatched advantages for companies. Businesses can establish retail, office, or mixed-use operations without compromise. In addition, its prime placement ensures constant exposure and accessibility. Therefore, this property represents the ideal platform for ambitious companies to expand. Contact us today to secure this Prominent Commercial Block in Attard.
Details
Updated on April 13, 2026 at 8:31 am- Price: €9,000,000
- Property Size: 2250 m²
- Property ID: 66411
- Bathrooms: 12
- Garages: 30
- Property Status: For Sale
