Prime Sliema Offices To Let
Description
Prime Sliema Offices To Let
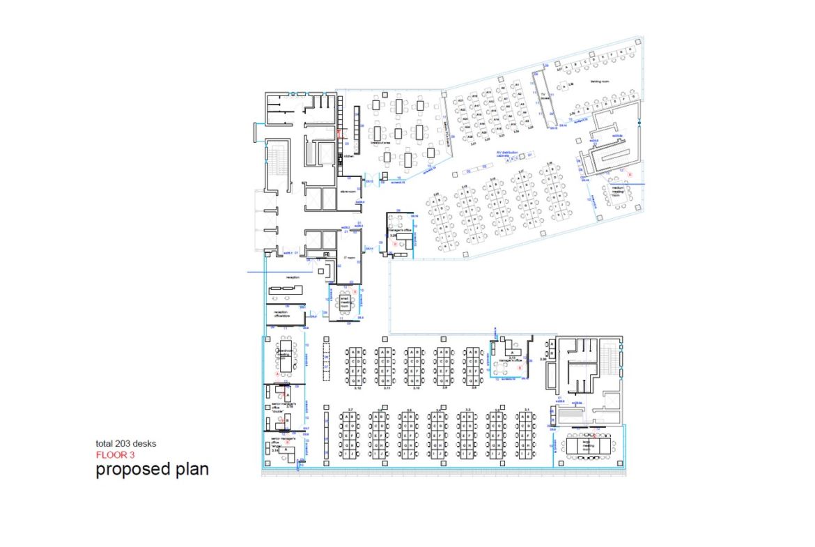
Prime Sliema Offices To Let on third floor level measuring circa 1762sqm. Located in highly professional business center in a prime location served by ample underground parking and enjoying panoramic sew views from a large section of the space.
Office space in a highly professional 16,000 m2 business center. A development consolidated as a holistic mixed-use development that brings together residences, shops, leisure areas, restored heritage sites and business in a prime location served by ample underground parking.
With a pronounced shortage of good quality, contemporary and efficient office space in Sliema, this business centre is the highly most sought-after address. This new office development ticks all the right boxes for potential tenants looking for a prime location, easy access, high-tech specifications, leisure amenities and the convenience that this new-town office development can offer its residents and tenants. Excellent shops, restaurants and services in a unique car-free environment. This allows businesses or organizations to attract and retain a better level of staff who are in turn drawn to the benefits of quality offices and an appealing supporting environment.
Location
Sliema is one of the most sought after location for companies looking to establish a buisness in Malta. It’s popularity has been increasing over the last 20 years attracting some high profile organisations. Moreover it also hosts 2 large main shopping areas which are Bisazza Street and Tigne Point. Both shopping areas retailing some of the most noteworthy clothing brands. It also attracts such popularity given its geographic location on the island. It’s in the central part of Malta and hence highly accessible. Also Sliema provides accommodation in the form of residential properties to let on a mass scale. This is of a great benefit for employees who are landing in Malta and require a place close to their office space. In terms of lifestyle, Sliema provides the best mix of work vs play in Malta.
Having many amenities in the area has made Sliema as a top destination in Malta. It’s seafront promenade which makes part of a longer stretch measuring circa 5km of coastal area extending from Ta Xbiex upto St Julians. A space which is ideal for a morning jog or an evening stroll. Lined up with all sorts of cafes, restaurants, shops, bars & lidos as well as swimming spots this is ideal to attract new recruits to your company. It is infact a really nice place for quick dip in the sea, its in nature a rocky shoreline enjoying pristine blue waters and a refreshing change in the warm summer months.
An ideal spot definitely to get your employees to mingle and socialise catering for their well being. You can plan friday beers at the nearest bar, spend a day in a nearby lido, get some diving experience especially on a sunken wreck as well as hiring a sailing boat in Malta for the day. Whether it’s for drinks at a beach bar after work, to spend a day relaxing sea-side, or to explore a sunken wreck at the seabed, Sliema expansive shoreline can be enjoyed all year round.
Details
Updated on February 23, 2026 at 11:09 am- Price: €62,687
- Rent/m²/year: €427
- Property Size: 1762 m²
- Property ID: 5332
- Bathrooms: 12
- Property Status: For Rent
