Office in Commercial Centre in Open Plan
- €11,965
Description
Office in Commercial Centre in Open Plan Malta
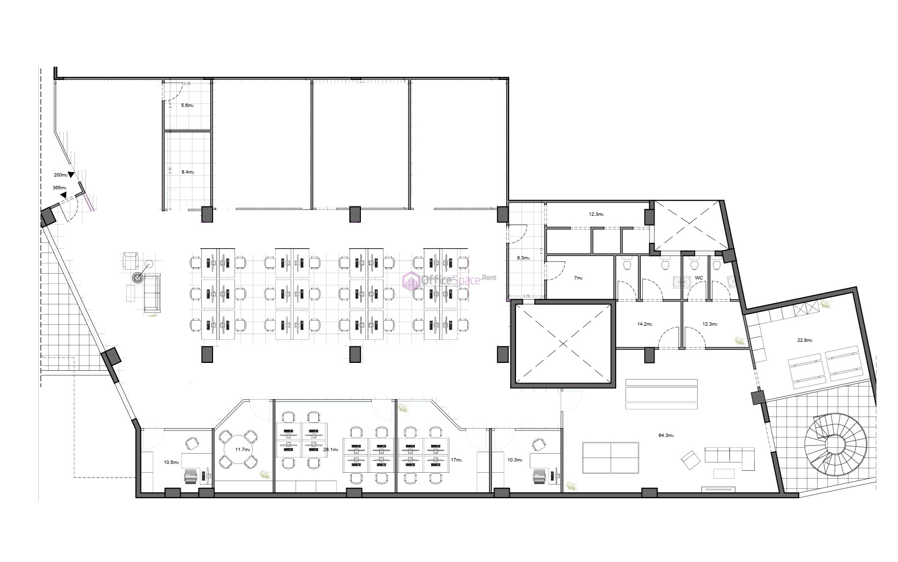
This office in a commercial centre in open plan Malta offers a high-quality workspace within a modern mixed-use development. The property is offered to let in a completely finished state and measures approximately 563 sqm. It is located on the second-floor level of a contemporary office centre designed to support professional operations. The office includes air conditioning, networking, data cabling, kitchen facilities, and bathrooms, allowing immediate occupation. As a result, this space suits established companies or growing brands seeking a strategic and well-presented business address close to St Julian’s.
Office Offering at a Glance
-
Circa 563 sqm of internal office space
-
Second-floor location within a modern office centre
-
Fully finished including air conditioning and lighting
-
Networking and data cabling already in place
-
Two large open-plan working areas
-
Capacity for approximately 35 to 55 workstations
-
Boardrooms, executive offices, and manager rooms
-
Reception and client lounge area
-
Kitchen, bathrooms, and dedicated server room
-
Lift and staircase access
-
Backup generator connection
The internal layout focuses on flexibility and efficiency. Two spacious open-plan areas allow teams to collaborate while maintaining clear workflows. These areas comfortably accommodate medium to large teams. In addition, the office includes well-sized boardrooms suitable for meetings, presentations, and strategy sessions. Dedicated manager and executive offices provide privacy for senior staff and confidential discussions.
A welcoming reception and lounge area sits at the heart of the office. This space creates a professional first impression and provides a comfortable setting for meeting clients. The kitchen area supports daily staff needs, while the bathrooms and server room add practicality and operational reliability. Furthermore, the office connects to a backup generator, ensuring continuity during power interruptions.
The building itself reflects a modern and professional image. It forms part of a large commercial mixed-use development that attracts reputable businesses. Lift and staircase access ensure smooth movement throughout the building for staff and visitors. Optional parking spaces are available within the block, subject to availability, which adds further convenience for daily operations.
Natural light flows through the office, creating a bright and productive environment. The clean finishes and modern design help reinforce a strong brand image. As a result, this office leaves a lasting impression on both clients and employees.
About the Location
This office in a commercial centre is located in Swieqi, just minutes away from the heart of St Julian’s. The location offers the advantage of proximity to one of Malta’s most vibrant business hubs while remaining slightly removed from heavy congestion. Therefore, companies benefit from accessibility without compromising on comfort or convenience.
Swieqi has become a popular choice for foreign companies relocating offices to Malta. The surrounding area offers a wide range of residential rental options, making it easy for employees to live close to work. In addition, the locality provides access to all essential daily amenities. Supermarkets, cafés, diners, retail outlets, and pharmacies are all located nearby, supporting smooth daily operations.
Public transport access is readily available within walking distance, making commuting straightforward for staff. Moreover, the office enjoys excellent connectivity to the rest of the island. It is located just off the main bypass that intersects Malta, allowing easy access from both northern and central regions.
Overall, this office in a commercial centre in open plan Malta combines space, functionality, and location. It provides a professional environment for companies seeking flexibility, modern infrastructure, and proximity to St Julian’s, while benefiting from the convenience and accessibility of Swieqi. Another option worth exploring is this Rent Office Swieqi Close to St Julians.
Businesses in the area may also be interested in this office space in Swieqi.
Details
Updated on March 26, 2026 at 12:35 pm- Price: €11,965
- Rent/m²/year: €255
- Property Size: 563 m²
- Property ID: 4821
- Bathrooms: 6
- Property Status: For Rent
