Office for Sale Msida
Description
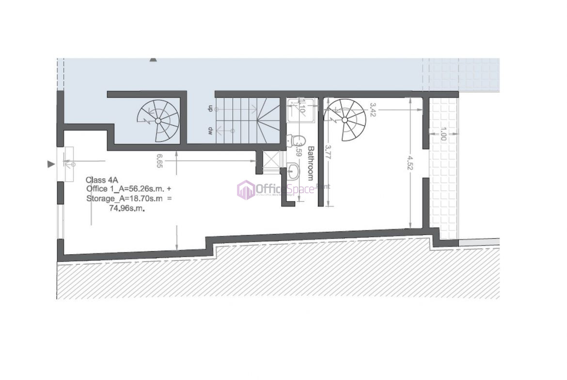
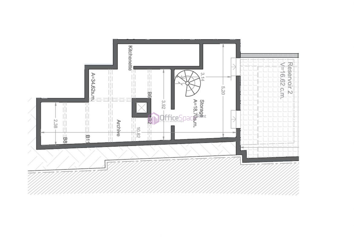
Office for Sale Msida
Total Area: 131 sqm | Estimated Desk Spaces: 13–18
This well-proportioned office in Msida presents an excellent opportunity for businesses seeking professional premises in Malta. With a total usable area of 131 square metres, the property provides ample room for a productive and well-organised workspace.
The property is well maintained and presented in good condition. The property includes 2 bathrooms.
Location and Accessibility
Msida is centrally located on Malta’s eastern coast, positioned between Valletta and the northern commercial districts. The locality benefits from proximity to the University of Malta, making it an attractive location for education-related businesses and tech startups. Msida offers competitive rental rates compared to neighbouring Sliema and Ta’ Xbiex, while maintaining good access to public transport and the island’s main road network.
Key Features
- 131 sqm of usable floor area
- Suitable for office use
- Bus stop nearby
Enquire About This Space
If you are looking to rent an office in Malta, this property offers a spacious and well-equipped workspace suitable for established businesses or expanding teams.
The team at OfficeSpace.rent can assist you with viewings, negotiations, and identifying the most suitable commercial property for your business.
Email: [email protected]
Phone: +356 9992 2220
Website: https://officespace.rent
Contact us today to schedule a viewing or explore more offices available across Malta.
Features
Details
Updated on March 12, 2026 at 1:06 pm- Price: €364,000
- Property Size: 131 m²
- Property ID: 54843
- Bathrooms: 2
- Property Status: For Sale
