Furnished Office in Hamrun
Description
Furnished Office in Hamrun
Those looking for a different layout might explore this Hamrun office and clinic space.
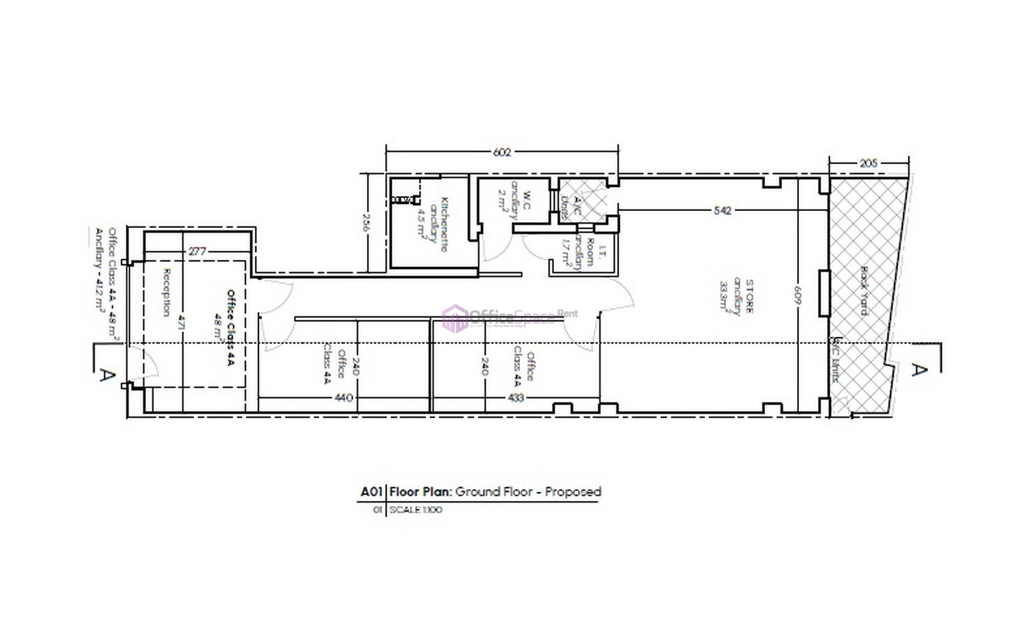
Total Area: 98 sqm | Estimated Desk Spaces: 9–14
This practical office in Hamrun presents an excellent opportunity for businesses seeking professional premises in Malta. With a total usable area of 98 square metres, the property provides ample room for a productive and well-organised workspace. The space is offered fully furnished and ready for immediate occupation.
The property benefits from full air conditioning throughout.
Location and Accessibility
Hamrun is a centrally located town in Malta, positioned between Valletta and the island’s interior. It offers affordable commercial premises with good public transport connections and road access. The town has a strong local economy with a mix of retail and professional services, making it a practical choice for budget-conscious businesses.
Key Features
- 98 sqm of usable floor area
- Suitable for office use
- Air conditioning
- Bus stop nearby
- Frontage
- Furnished
Enquire About This Space
If you are looking to rent an office in Malta, this property offers a spacious and well-equipped workspace suitable for established businesses or expanding teams.
The team at OfficeSpace.rent can assist you with viewings, negotiations, and identifying the most suitable commercial property for your business.
Email: [email protected]
Phone: +356 9992 2220
Website: https://officespace.rent
Contact us today to schedule a viewing or explore more offices available across Malta.
Details
Updated on March 21, 2026 at 8:18 am- Price: €2,000
- Rent/m²/year: €245
- Property Size: 98 m²
- Property ID: 66491
- Property Status: For Rent
