Updated: Feb 23, 2026
Prominent Commercial Building For Sale Malta
Description
Prominent Commercial Building For Sale Malta
Prominent Commercial Building For Sale Malta. Enjoying frontage on one of the prominent roads of Malta in Zebbug. Consisting of 3 floors of parking which can cater for circa 95 unencumbered parking spaces. Retail measuring 1131sqm at ground level and also 2 floors of retail/offices on levels 1 & 2. A possible extension on penthouse level exists to further expand the building. Building requires conversion and works. Ideal for a flagship building for a company looking to establish itself in top location.
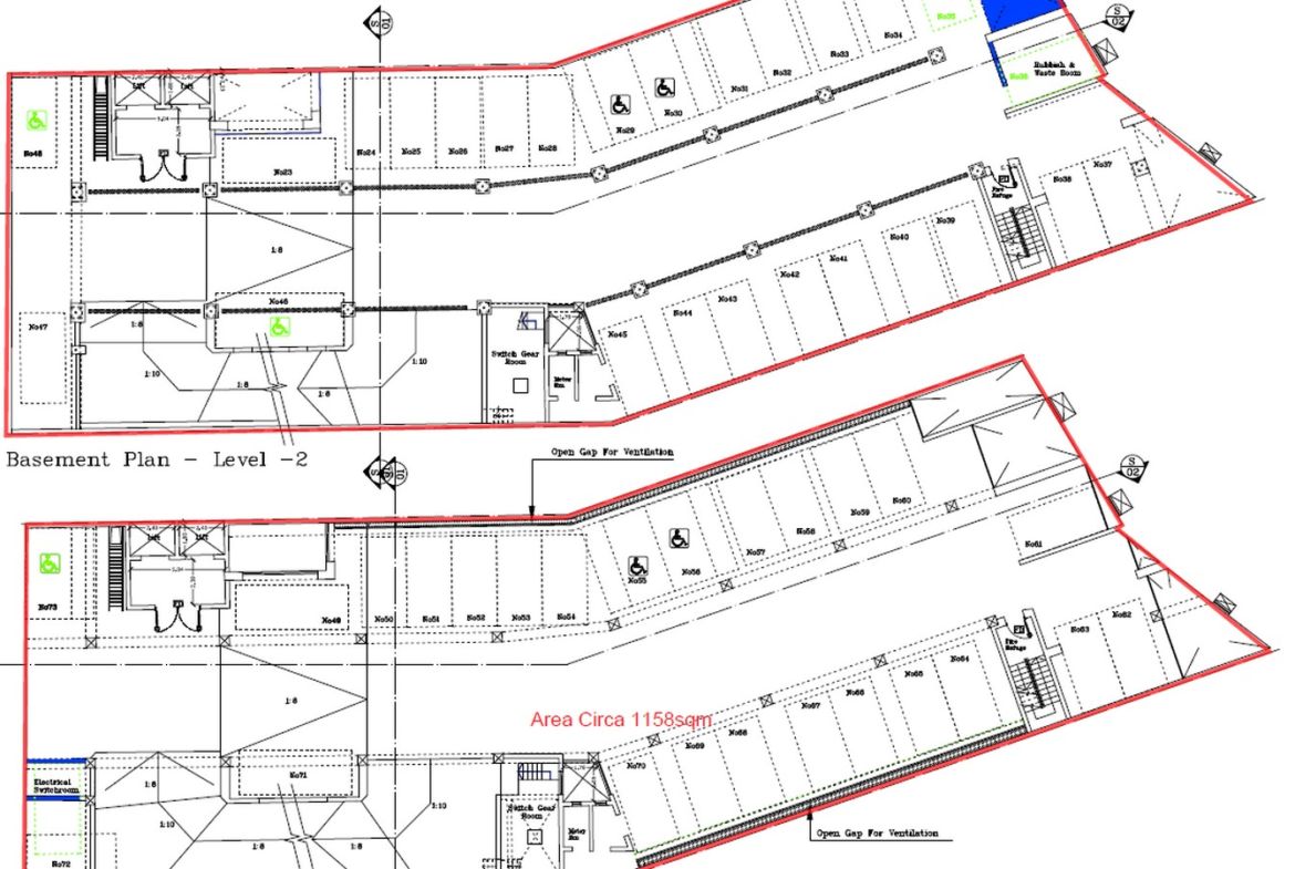
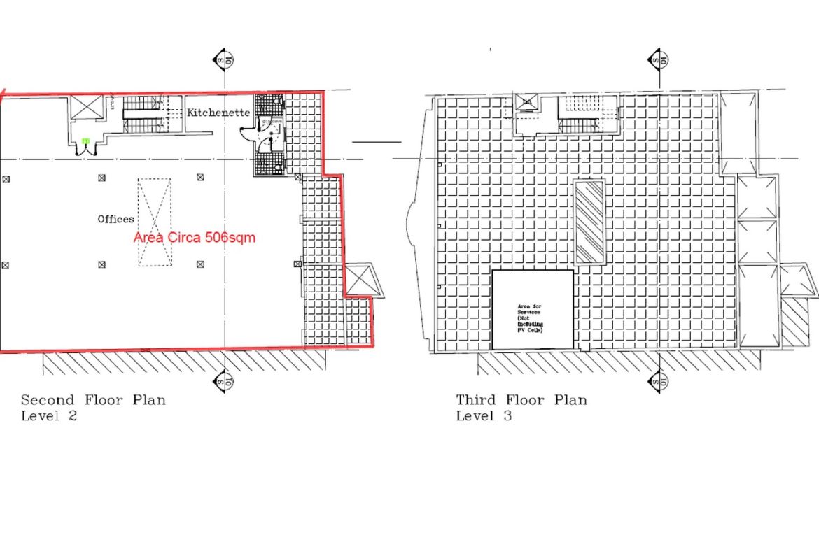
Building Layout
- level -3: 800sqm – 25 parking spaces
- level -2: 1158sqm – 35 parking spaces
- level -1: 1158sqm – 35 parking spaces
- level 0: 1131sqm
- level 1: 742sqm
- level 2: 506sqm
(possible extension to building applying for a penthouse level)
Energy Performance Certificate: N/A
Details
Updated on February 23, 2026 at 11:15 am- Price: €6,350,000
- Property Size: 2400 m²
- Property ID: 39313
- Garages: 95
- Garage Size: 2300
- Property Status: For Sale
