Central Business District Furnished Office
Description
Central Business District Furnished Office
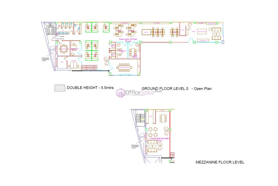
Highly Finished Central Business District Furnished Office. The office is conveniently located on the ground floor of a meticulously finished business center, encompassing a total area of circa 462sqm. Of which, 382 square meters on ground floor level and 80sqm on first floor level. Its layout includes a welcoming reception area, a nice break out area on mezzanine level, restroom facilities, executive offices, meeting rooms and an expansive open space suitable for 16-30 individuals. Additionally, eight parking spaces are included in the price. Offered finished and furnished in a tale quale state.
The Location
Central Business District Mriehel is a noteworthy business locale with an ever-growing concept. Moreover home to a high concentration of offices in the central part of Malta. A hub which attracts a great many shoppers with over 250 shops and organizations in operation in this area. Definitely one of the most desired locations of any company looking to set up or relocate their offices in a central area. However several key factors makes this location a great option to consider.
- Strategically located: Centrally situated and offering excellent connectivity to other parts of the island. This is because it’s just off two main arterial roads and hence providing easy access to North and South bound traffic. Also close to towns such as Hal Balzan, Birkirkara, Attard as well as Hamrun, Qormi and Santa Venera. All of which offering a myriad of residential options which one can rent at affordable pricing.
- Modern Infrastructure: Housing a number of high end new projects and buisness centres, this area boasts a modern infrastructure and also well-designed commercial spaces. With some providing state-of-the-art facilities for offices. Buildings in Mriehel are equipped with advanced technology, high-speed internet connectivity, and efficient utilities.
- Variety of Options: A great of options which you can choose from. From scalable coworking and serviced offices center’s to private offices as well as high end business center’s one has a delightful list of options to choose from.
- Amenities: Amenities and services that cater to the needs of office workers. Enjoying an ever expanding list of restaurants, cafes, and food outlets, providing numerous dining options for employees. Moreover various shops, supermarkets, and convenience stores in the nearby vicinity, ensuring easy access to daily necessities. Additionally, Mriehel is in proximity to recreational facilities, including gyms and parks, allowing for a balanced work-life environment.
Details
Updated on February 23, 2026 at 10:52 am- Price: €7,850
- Rent/m²/year: €204
- Property Size: 462 m²
- Property ID: 58369
- Bathrooms: 3
- Garages: 8
- Property Status: For Rent
