Business Centre Offices in Haz Zebbug
Description
Business Centre Offices in Haz Zebbug
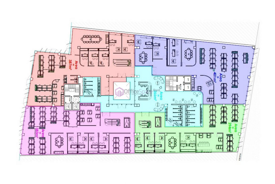
Total Area: 294 sqm | Estimated Desk Spaces: 29–42
This generously sized office in Zebbug presents an excellent opportunity for businesses seeking professional premises in Malta. With a total usable area of 294 square metres, the property provides ample room for a productive and well-organised workspace.
The property benefits from full air conditioning throughout, lift access for convenience, a fire alarm system for safety compliance, and a backup generator ensuring uninterrupted operations. Reserved parking is available, a significant advantage in Malta’s busy commercial areas.
Location and Accessibility
This locality in Malta offers a practical and accessible business location with good connections to the island’s main road network. Local amenities including shops, restaurants, and services are available nearby, supporting a productive working environment.
Key Features
- 294 sqm of usable floor area
- Suitable for office use
- Air conditioning
- Bus stop nearby
- Country Views
- Fire alarm system
- Frontage
- Backup generator
- Lift access
- Manned Reception
- Nearby parking
- Reserved parking
- Wheelchair accessible
Enquire About This Space
If you are looking to rent an office in Malta, this property offers a spacious and well-equipped workspace suitable for established businesses or expanding teams.
The team at OfficeSpace.rent can assist you with viewings, negotiations, and identifying the most suitable commercial property for your business.
Email: [email protected]
Phone: +356 9992 2220
Website: https://officespace.rent
Contact us today to schedule a viewing or explore more offices available across Malta.
Details
Updated on March 12, 2026 at 12:51 pm- Price: €5,390
- Rent/m²/year: €220
- Property Size: 294 m²
- Property ID: 65351
- Garage Size: 200
- Property Status: For Rent
