Bkara Commercial Space
Description
Bkara Commercial Space
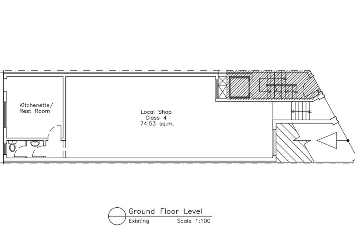
75 sqm | Suitable for approximately 7–10 desks. This Bkara commercial space measures circa 75 square metres and has its own private entrance. The layout consists of two spacious rooms, a bathroom, and a small yard. As a result, the space offers both privacy and flexibility for small businesses. Furthermore, the separate entrance means tenants operate independently without shared access arrangements.
Birkirkara — An Affordable Central Location
Rents in Birkirkara are considerably lower than in Sliema, Gzira, or Mriehel. Consequently, businesses gain a central position without paying a premium. The busy high street provides all daily amenities. In particular, banks, shops, cafes, and a market sit within walking distance. Businesses leasing this Bkara commercial space also benefit from the town’s strong road connections to every part of Malta. For support in setting up operations, Malta Enterprise offers grants and incentive schemes.
Ideal For
This Bkara commercial space suits small professional practices, consultancies, or service businesses. The two-room layout allows separation between client-facing and back-office functions. Moreover, the private yard provides a practical outdoor area. Sole practitioners and startups will find the size manageable and the rent accessible. The Malta Chamber of Commerce offers networking and support for growing businesses in the area.
Small commercial units with private entrances are increasingly sought after in Malta. Indeed, post-pandemic working patterns have boosted demand for self-contained spaces. Above all, the combination of affordability, privacy, and a central Birkirkara location makes this property a practical choice for cost-conscious businesses.
Birkirkara is also home to a growing number of professional services firms. Consequently, the local business community is expanding steadily. This trend supports networking and collaboration opportunities for new tenants.
For available office spaces in Birkirkara, visit the Birkirkara office listings page.
Enquire About This Space
The team at OfficeSpace.rent can assist you with viewings, negotiations, and identifying the most suitable commercial property for your business.
Email: [email protected]
Phone: +356 9992 2220
Website: https://officespace.rent
Details
Updated on March 27, 2026 at 11:43 am- Price: €1,210
- Rent/m²/year: €194
- Property Size: 75 m²
- Property ID: 42563
- Bathroom: 1
- Property Status: For Rent
