Updated: Feb 23, 2026
Birkirkara Office To Let
Description
Birkirkara Office To Let
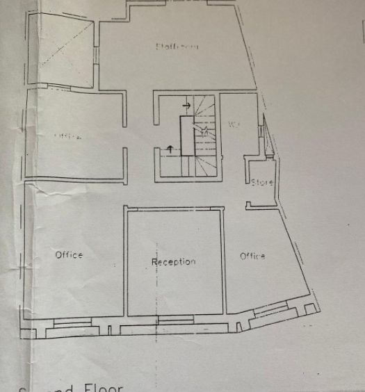
Birkirkara Office To Let in a central location. Close to public transport connections and in the vicinity of Mriehel Business Hub. Affordable office renting at just 800 euro per month. The office is on level 2 in a commercial block which does not have lift access. Consists of 5 rooms and ideal for 5-12 employee operation. Ideal space for start up companies to launch their offices from whilst keeping the rent price down. Recently refurbished including parquet flooring and 3 new air conditioning units. Located on second floor with no lift access. Bargain price reduced to rent.
Energy Performance Certificate: N/A
Features
Details
Updated on February 23, 2026 at 11:49 am- Price: €1,000
- Rent/m²/year: €92
- Property Size: 130 m²
- Property ID: 18142
- Bathrooms: 2
- Property Status: For Rent
